11/2260 Mt Baw Baw Tourist Road, Icy Creek
- $460,000 - $500,000
11/2260 Mt Baw Baw Tourist Road, Icy Creek
- $460,000 - $500,000
Overview
- Sold Properties
- 2
- 1
- 10.65 Squares of Living
- 729 m²
Details
-
Property ID CR-19815
-
Price $460,000 - $500,000
-
Property Size 10.65 Squares of Living
-
Land Area 729 m²
-
Bedrooms 2
-
Bathroom 1
-
Property Type Sold Properties
-
Property Status SOLD
Description
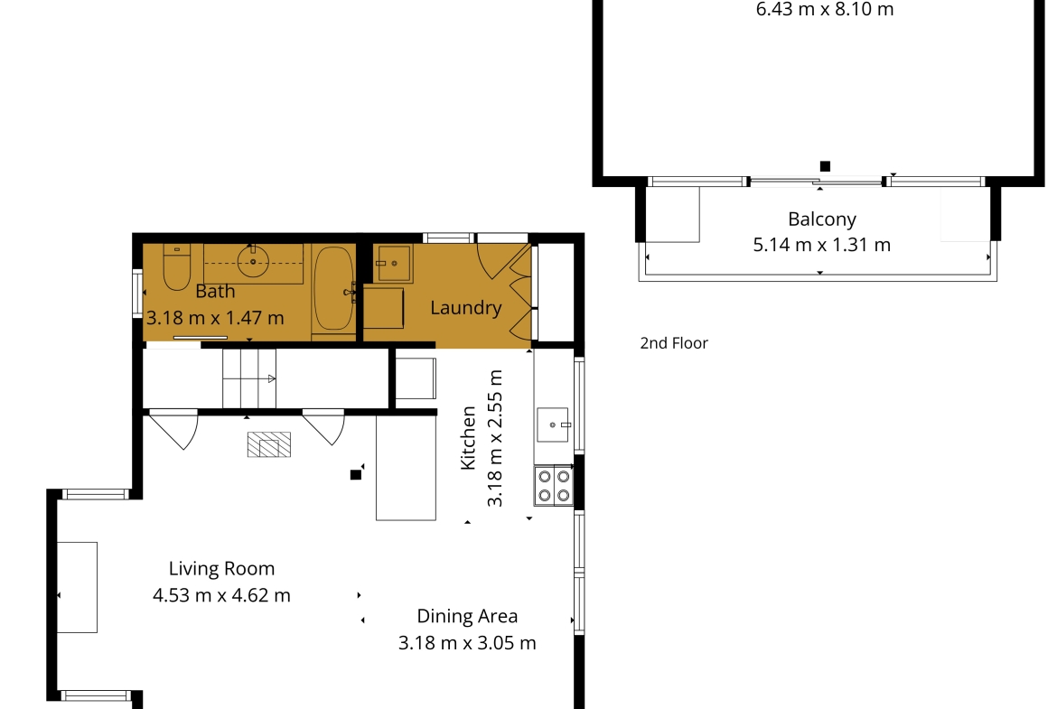
HIDDEN HAMLET
Looking for something different, “TIMBOON MILL” is a cluster of Villa’s set on approximately 144 acres of natural bushland and cleared open green pastures.
If you’re looking for that get-a-way weekend lifestyle or perhaps permanent living then this Hidden Hamlet could be just the answer you are searching for.
This bright and cheerful villa offers a cosy open plan living of kitchen, dining and lounge room, separate bathroom and laundry plus upstairs is the bedroom areas
with private balcony.
Property Documents
Statement of Information
Every precaution has been taken to establish the accuracy of the above information provided; however, it does not constitute any representation by the vendor, agent or Chenz Realty and you should rely on your own inquiries as to the accuracy of any information or material made available.














