8 Russell Street, Drouin
- $540,000 - $580,000
- $540,000 - $580,000
Overview
- Sold Properties
- 3
- 1
- 2
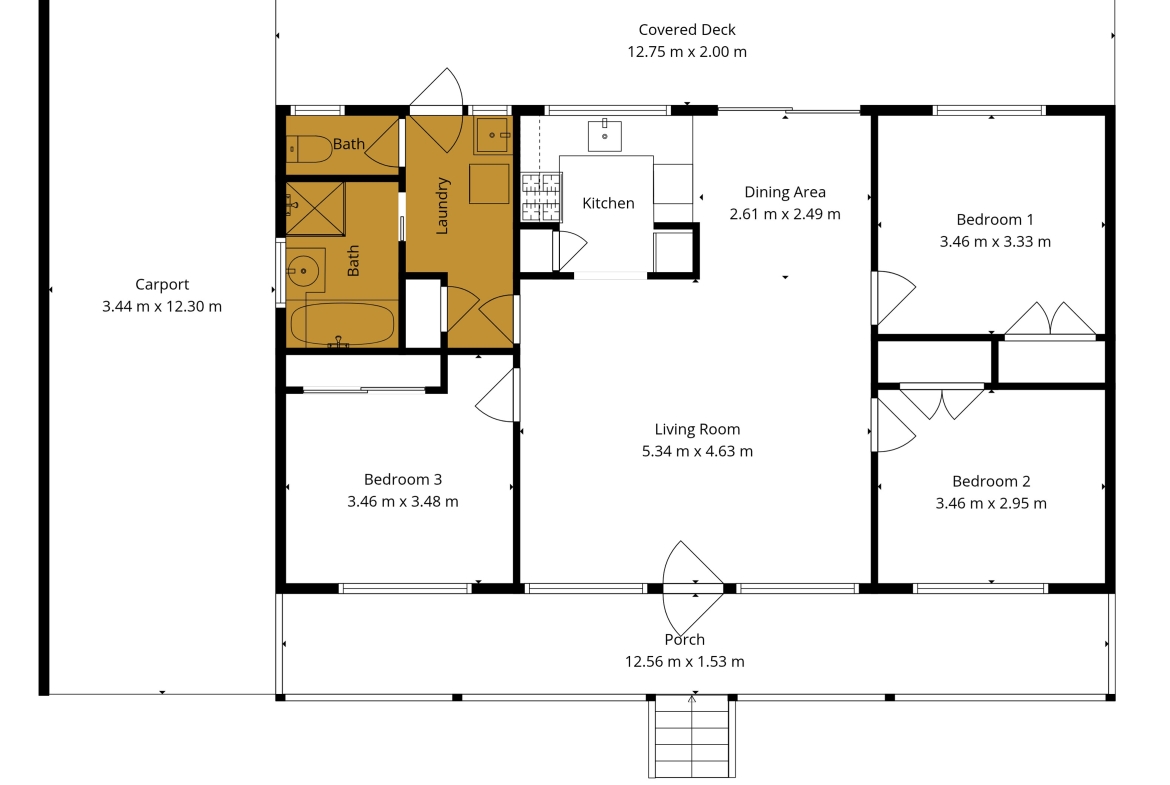
- 102 m²
- 591 m²
Details
-
Property ID CR-20823
-
Price $540,000 - $580,000
-
Property Size 102 m²
-
Land Area 591 m²
-
Bedrooms 3
-
Bathroom 1
-
Garages 2
-
Garage Size Carport
-
Property Type Sold Properties
-
Property Status SOLD
Description
Quiet Street, Walk to Town – Charming 3 Bedroom Home on 591m²
Positioned in a quiet street within walking distance to the heart of Drouin, this beautifully maintained three-bedroom, one-bathroom home offers comfort, practicality, and a relaxed lifestyle surrounded by established gardens and calming outlooks.
As you arrive, the home immediately welcomes you with its peaceful setting and inviting street presence. Inside, the layout opens into a light-filled open plan living space featuring floorboards and high ceilings, creating a sense of space and warmth throughout the home. Designed for year-round comfort, the living area is serviced by a centrally located split system and gas wall heater, ensuring a comfortable environment in every season.















